Schloss Braunschweig

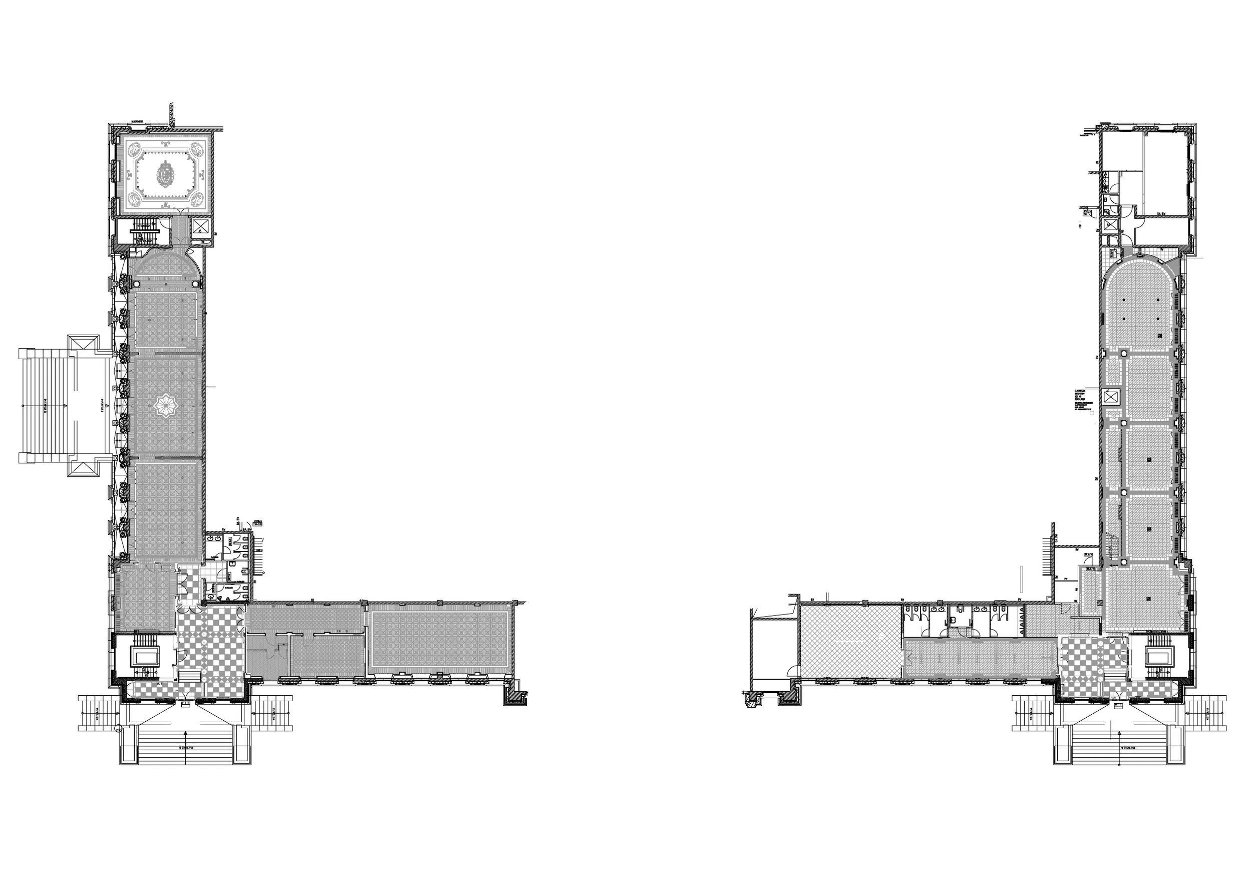
Im Zuge des Wiederaufbaus des Braunschweiger Residenzschlosses wurde ein Stahlbetonbaukörper errichtet und von außen mit der Rekonstruktion der historischen Fassade bekleidet. Im Inneren sollten die Räumlichkeiten des ehemaligen Schlosses wieder entstehen, zumindest im linken Flügel, dem späteren Schlossmuseum. Dieser Auftrag begann mit Recherche historischer Fotos und von Fragmenten der damaligen Ausstattung. Oft wurden zunächst Handskizzen angefertigt und dann die Rekonstruktionsplanung erstellt. Diese war dann zusammen mit den Fotos und Fragmenten die Grundlage für die ausführenden Handwerker, Modellbildhauer und Stuckateure. Rekonstruiert wurde die gesamte Ausstattung einschließlich des Thronhimmels, der Türen, der Geländer, der Vorhänge usw.. Ausstellungskonzeption: von Jacobs Ausstellungsdesign 

Fotos Schlossmuseum Braunschweig: Moritz Küstner / Grafiken: Stuhlemmer