Neubau Eingangsgebäude
Domäne Dahlem
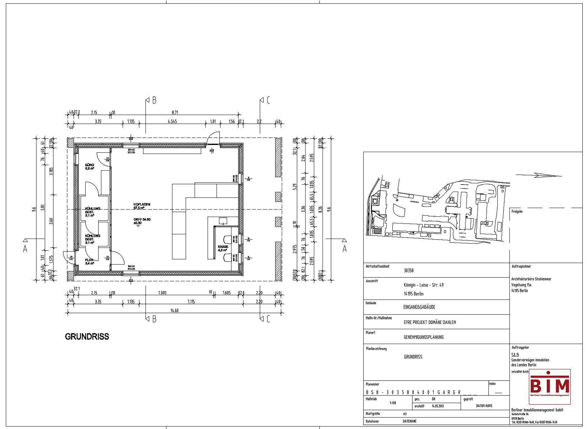
Der ehemalige Gutshof in Berlin-Dahlem soll rentabel werden und um ein Landgasthaus und einen Hofladen ergänzt werden. Wichtig war bei dieser Aufgabe, dass der Charakter des Freilichtmuseums für Agrar- und Ernährungskultur erhalten bleibt.
Am liebsten wäre manchen, wenn alles bliebe, wie es ist. Aber die Domäne Dahlem in Zehlendorf erlebt zurzeit die aufwendigsten Umbauarbeiten seit der Gründung des Freilandmuseums 1976. Zuvor gab es großen Streit, dabei bleibt der typische Charakter des Hofes erhalten.
Von Anett Kirchner erschienen im Tagesspiegel online am 14.11.2014
1. Platz im Architektenwettberwerb: STUHLEMMER ARCHITEKTEN
Neubau Eingangsgebäude / Hofladen und Ausbau Remise zum Landgasthaus Domäne Dahlem Berlin
Neubau Eingangsgebäude / Hofladen Domäne Dahlem Berlin
Ausbau offener Unterstand durch Ergänzung von zwei einrahmenden Baukörpern zum Landgasthaus der Domäne Dahlem Berlin
Landgasthaus
Fotos: Stuhlemmer